Travaux
Index
Office
A
B
C
E
F
Corps
T
C
Travaux Communs
+33 6 22 93 75 47
3 rue des Capucins, 69001 LYON
office@corps-tc.archi
Corps
T
C
TA-LI01
Appartement
R
Réhabilitation
VD
Villes denses
LYO
LYON 3, 69
PR
MOA PRIVÉE
AMA
CORPS TC
ALICE NICOLLIN
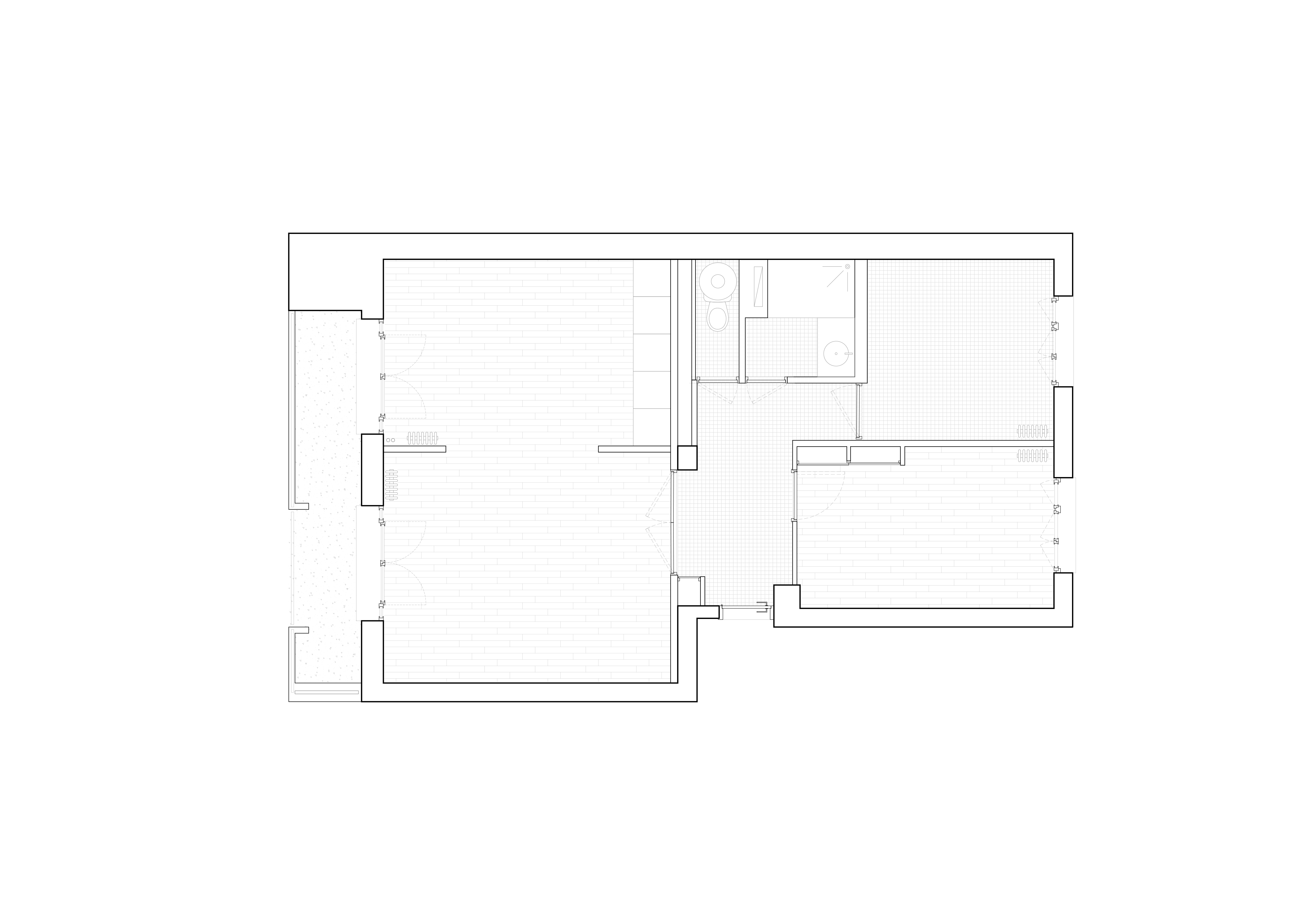
64 – 0.04
64 M²
40 000 €
L
Livré 2017
INFOS
ARCHITECTE MANDATAIRE
CORPS TC
ARCHITECTE ASSOCIÉE
ALICE NICOLLIN
PLOMBERIE
MY CONCEPT PLOMBERIE
Processus
1
/ 4
Réalisation
1
/ 2
CORPS
T
C
TA-LI01 APPARTEMENT
✕