TA-LI02
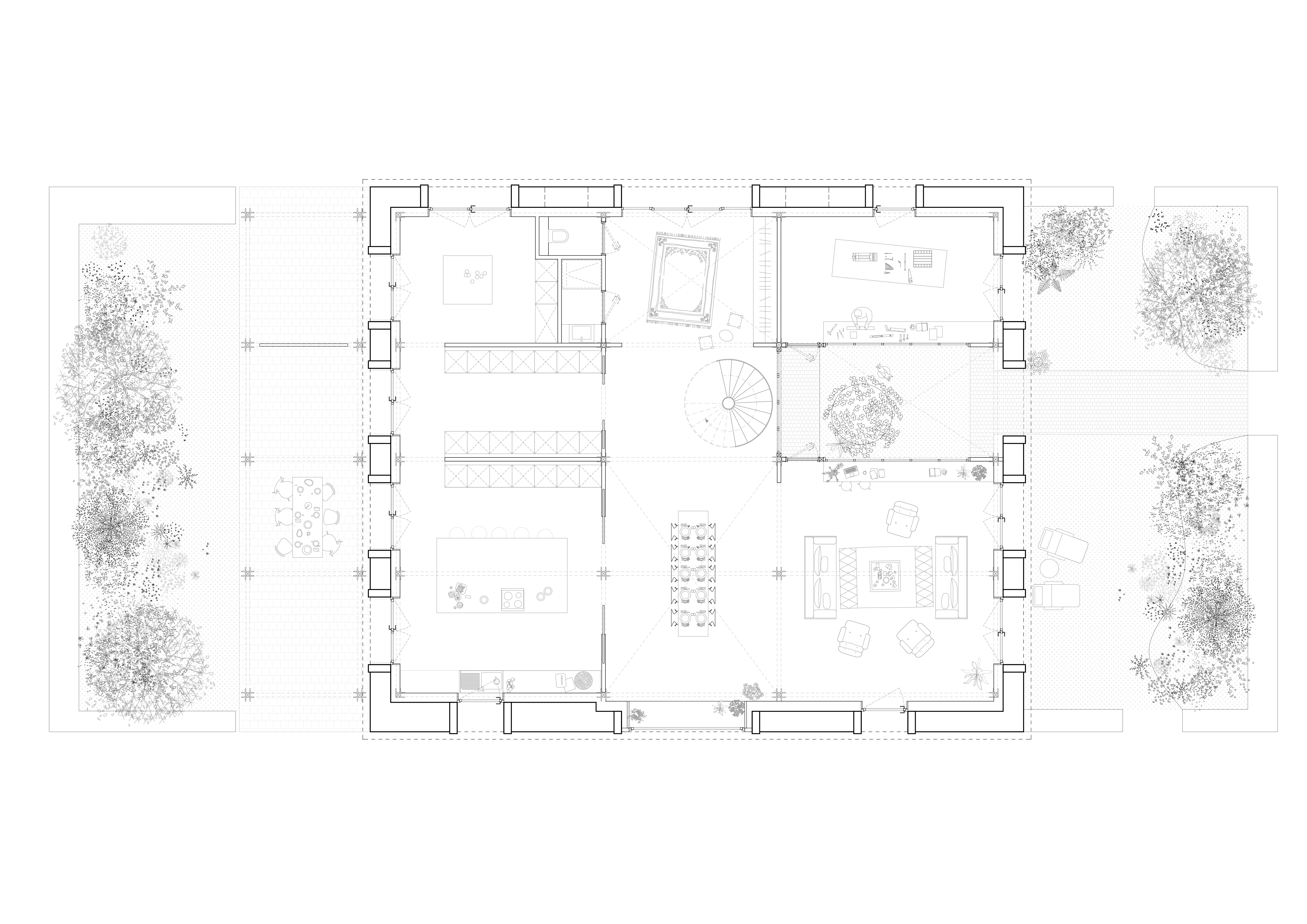
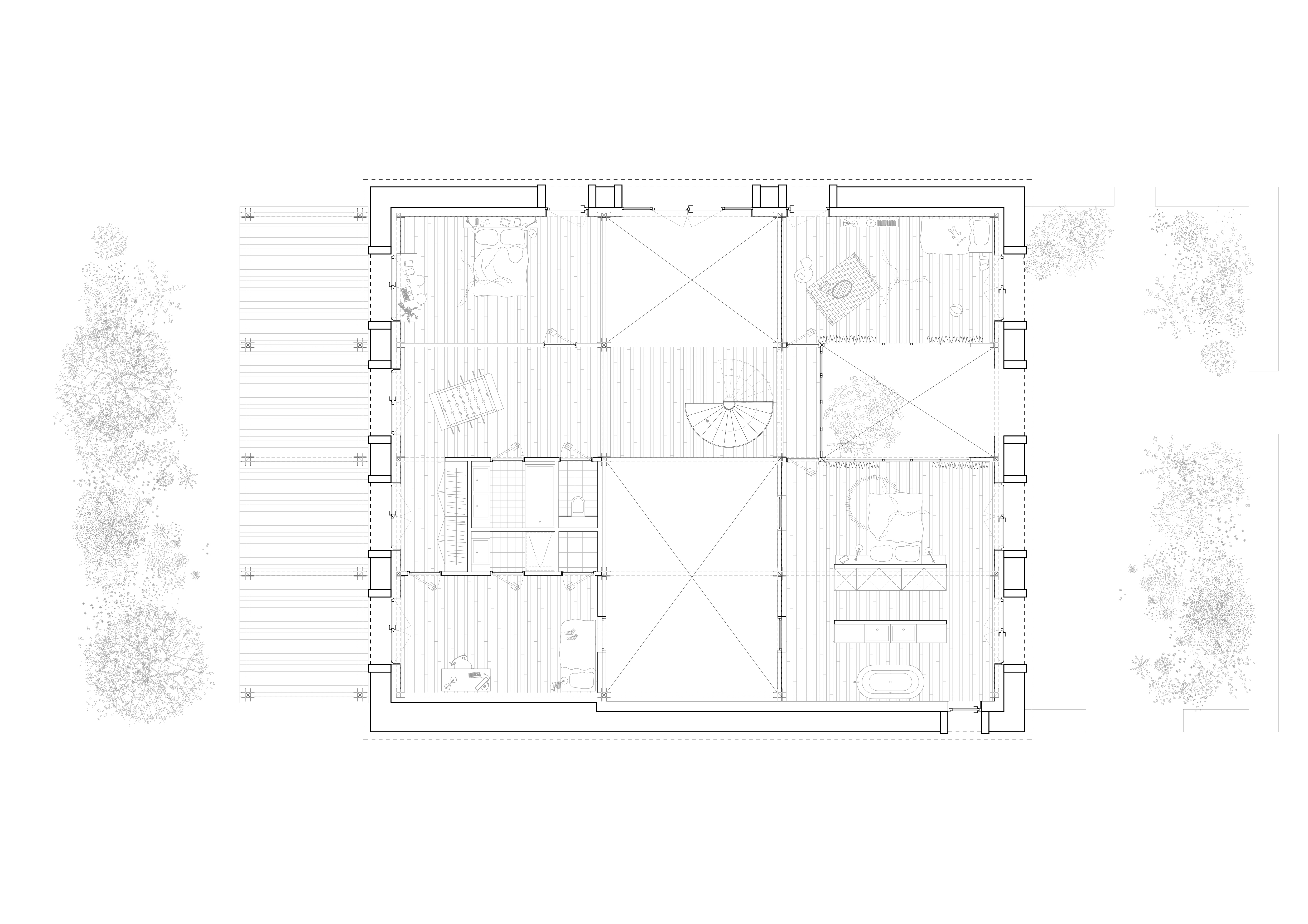
MAISON FAMILIALE
R
Réhabilitation
VB
Villages et bourgs
IVR
Ivry-en-Montagne, 21
PR

MOA PRIVÉE

AMA

MEURSAULT ARCHITECTURE, CORPS TC, ALICE NICOLLIN

1200 – 1.6
1 200 M²
1,6 M€
EC
CHANTIER EN COURS
INFOS

 

ARCHITECTE MANDATAIRE

MEURSAULT ARCHITECTURE

ARCHITECTE ASSOCIÉ

CORPS TC

ARCHITECTE ASSOCIÉE

ALICE NICOLLIN

CRÉDITS PHOTOGRAPHIQUES

CORPS TC

Processus 1 / 23

Réalisation 1 / 2

CORPSTC
TA-LI02 MAISON FAMILIALE