Réalisé en tant que chef de projet au sein de l'agence Vergély Architectes.
TA-LC04
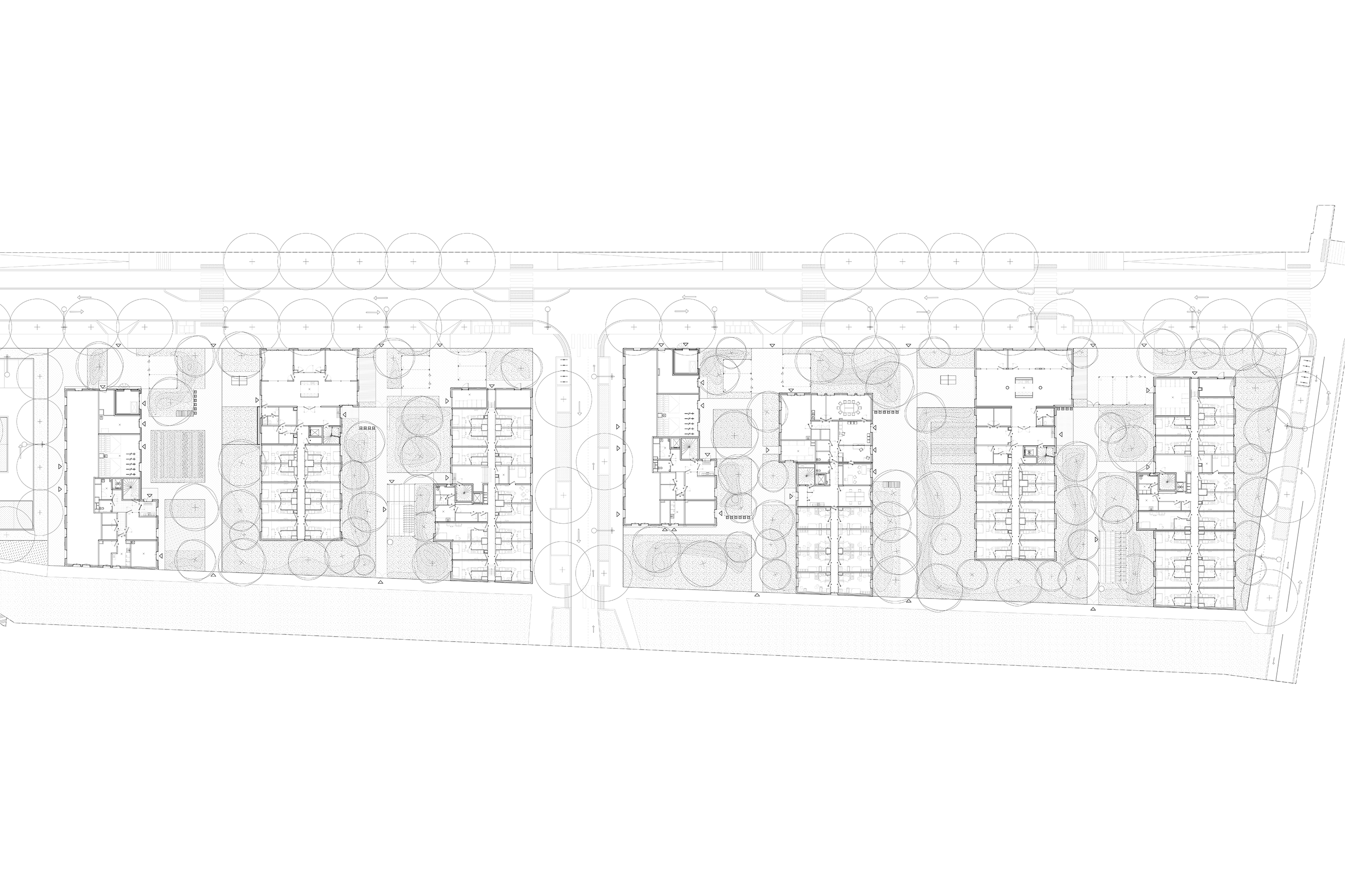
RÉSIDENCE ÉTUDIANTE DE 772 LITS
N
Construction neuve
P
Périphéries
BRO
BRON & ST-PRIEST, 69
PR

MOA LINKCITY SUD-EST, VILOGIA, BOUYGUES BÂTIMENT SUD-EST

AMA

VERGÉLY ARCHITECTES
CHARRIÈRE & JACOB

19 400 – 50
19 400 M²
50 M€
L
livré 2025
INFOS

 

MAÎTRE D'OUVRAGE MANDATAIRE

LINKCITY SUD-EST

GROUPEMENT MOA

LINKCITY SUD-EST, VILOGIA, BOUYGUES BÂTIMENT SUD-EST

EXPLOITANTS

CROUS, SERGIC, KLEY

ARCHITECTE MANDATAIRE

VERGÉLY ARCHITECTES

ARCHITECTE ASSOCIÉ

CHARRIÈRE & JACOB

PAYSAGISTE

MOZ PAYSAGES

STRUCTURE

GP STRUCTURE

STRUCTURE

BOUYGUES BÂTIMENT SUD-EST

FLUIDES, THERMIQUE, VRD

SCOPING

HQE

EODD

ÉCOLOGUE

ELAN

ACOUSTIQUE

EXACT ACOUSTIQUE

SIGNALÉTIQUE

ATELIER CHV

BUREAU DE CONTRÔLE

QUALICONSULT

RÉALISATION

BOUYGUES BÂTIMENT SUD-EST

CRÉDITS PHOTOGRAPHIQUES

CORPS TC, RAPHAËL FIORESE

Processus 1 / 33

Réalisation 1 / 22

CORPSTC
TA-LC04 RÉSIDENCE ÉTUDIANTE DE 772 LITS