TA-LI14
Appartement
R
Réhabilitation
VD
Villes denses
LYO
Lyon 6, 69
PR

MOA PRIVÉE

AM

CORPS TC

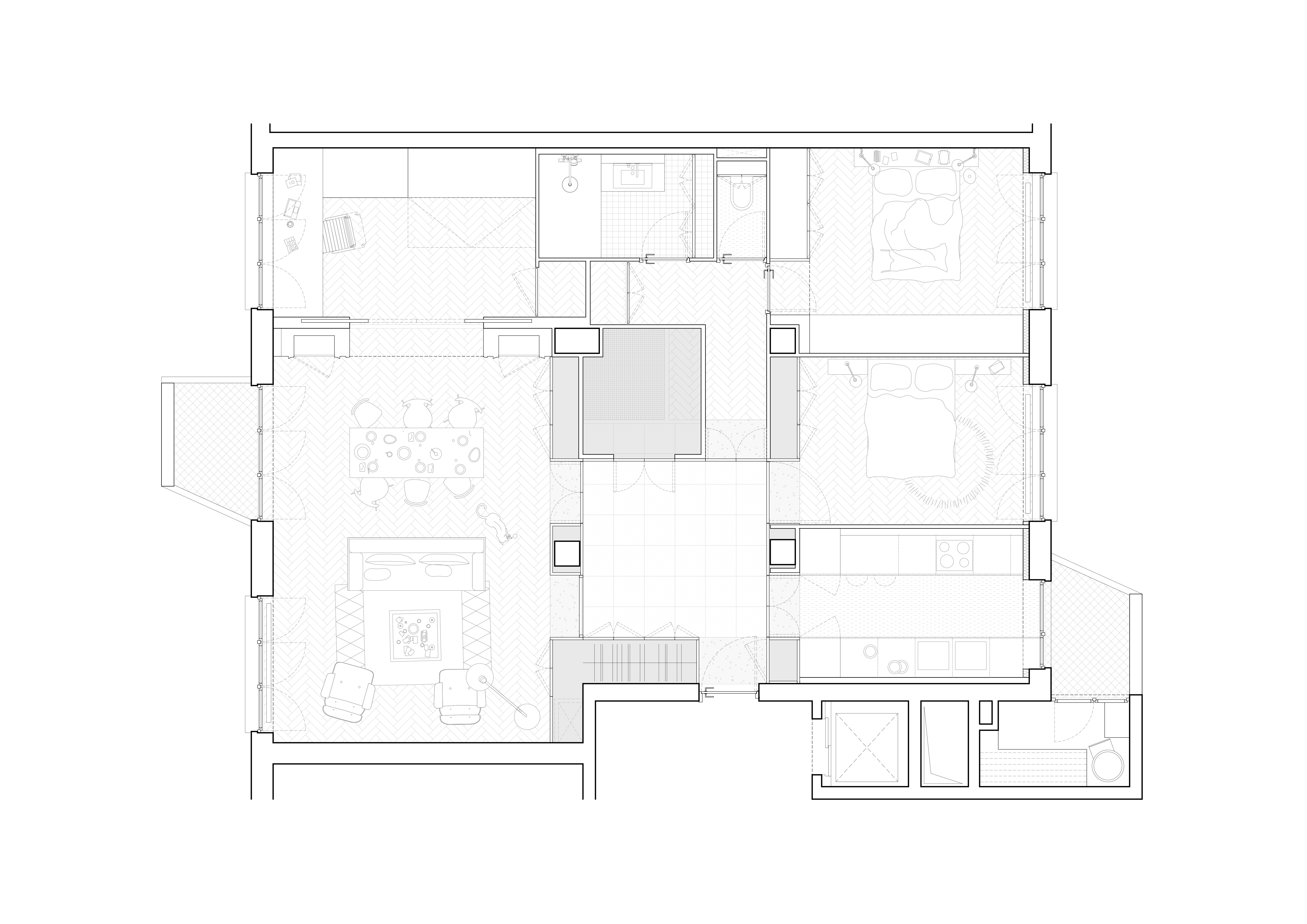
105 – 0.182
105 m²
182 000 €
L
livré 2025
INFOS

 

ARCHITECTE MANDATAIRE

CORPS TC

DÉMOLITION

NCF DÉMOLITION

TOUS CORPS D'ÉTAT

SOLYPER

MENUISERIE INTÉRIEURES

ROMERA BOIS, VINEL & FILS

MENUISERIE EXTÉRIEURES

AUTHENTIQUE BOIS

RÉSINE

SARL CCS

TAPISSERIE

MOUSSE & VOILE

PLAN DE TRAVAIL

CÔTÉPLAN

CRÉDITS PHOTOGRAPHIQUES

CORPS TC

Processus 1 / 32

Réalisation 1 / 23

CORPSTC
TA-LI14 APPARTEMENT