TE-T01
Bureaux
R
Réhabilitation
VD
Villes denses
PAR
Paris 17, 75
PR

MOA PRIVÉE

AM

CORPS TC

330 – NC
330m²
COÛT NC
NL
non lauréat
INFOS

 

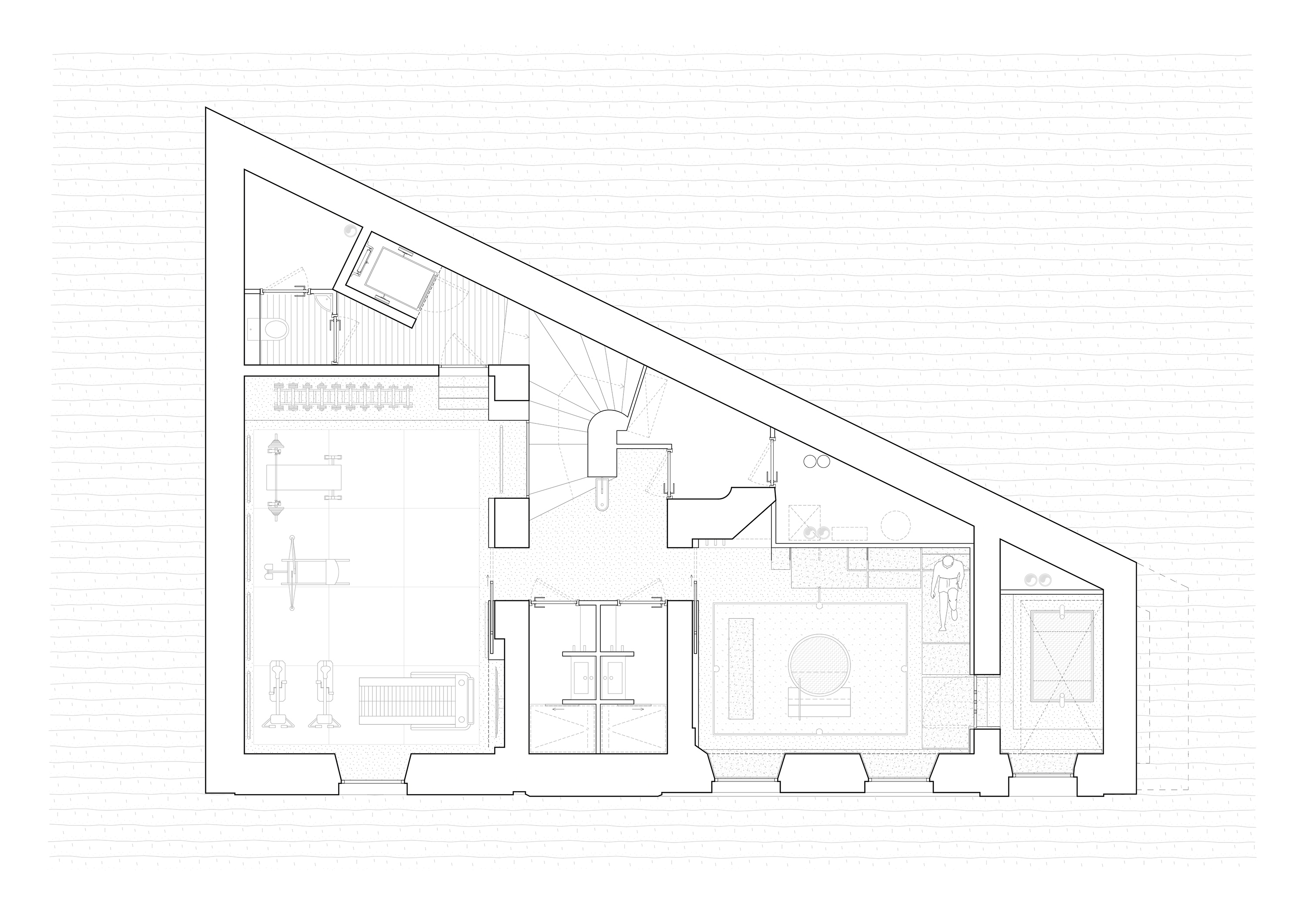
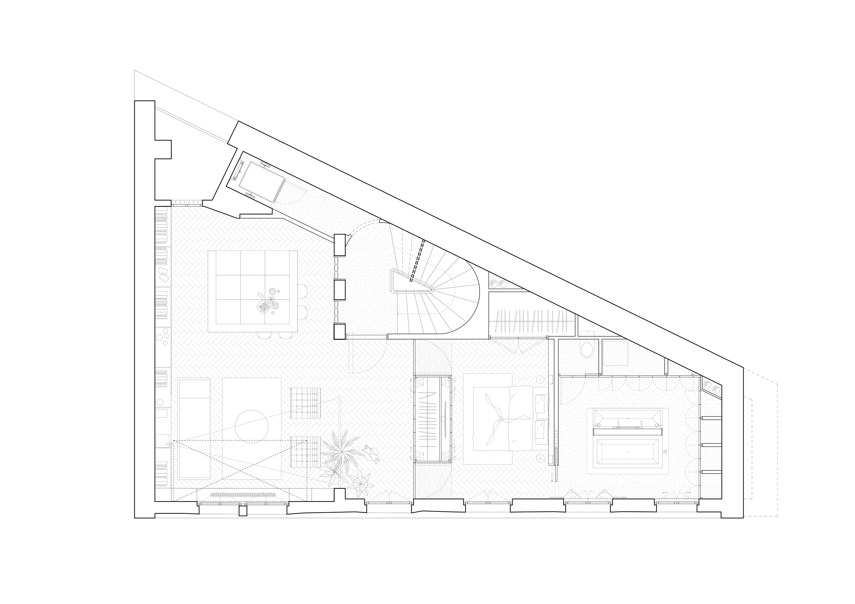
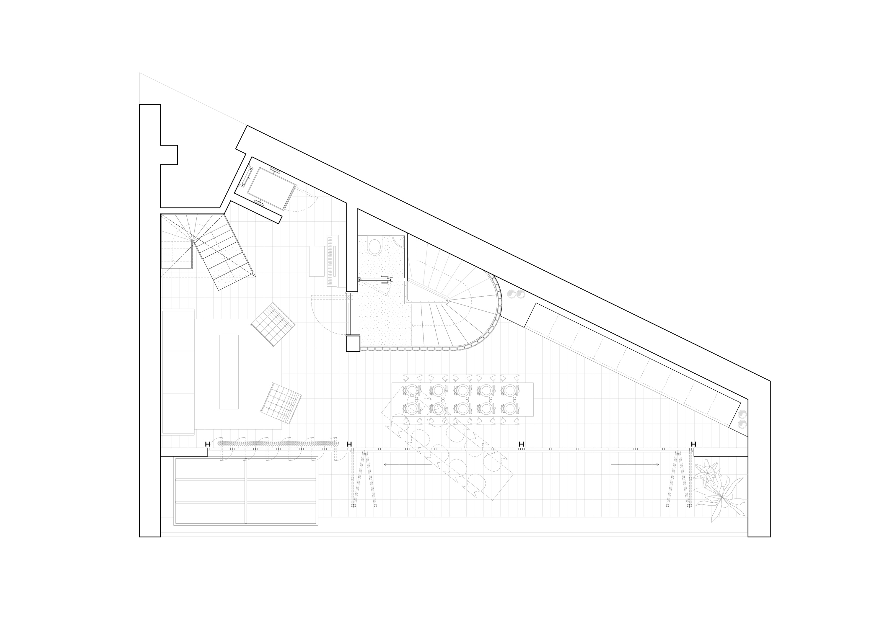
Installer un programme complexe dans un petit hôtel particulier du XIXe requiert une approche à la fois pragmatique et sensible. L’héritage patrimonial de ces quartiers nobles est immense, et habiter ces lieux de manière contemporaine nécessite de prendre des risques. La circulation verticale de l’immeuble est au centre du plan, elle dessert de modestes plateaux d’environ 70m² chacun. Les étages sont ainsi souvent polarisés droite-gauche en raison de la structure immuable du bâtiment. Articuler deux grands programmes, ‘habiter’ et ‘travailler’, dans ce volume morcelé demande de repenser la nature même de l’immeuble historique. Notre intervention travaille dans ce sens, avec pour ambition de trouver de beaux volumes et d’apporter de la lumière et de la fluidité dans ce qui apparaît aujourd’hui comme étant une somme de pièces sombres, exiguës et répétitives. Guidés par cette envie d’offrir un maximum de lumière naturelle et de grands espaces, nous avons imaginé un projet qui manipule les codes de l’immeuble bourgeois que nous connaissons tous. Ainsi nous pouvons rêver trouver un jour ici de magnifiques doubles-hauteurs, des enfilades de fenêtres libres de toute cloison, de créer un parcours clair et ponctué de mobilier pensé pour le lieu et devenant indissociable.

ARCHITECTE MANDATAIRE

CORPS TC

CRÉDITS PHOTOGRAPHIQUES

CORPS TC

Processus 1 / 15

Réalisation 1 / 5

CORPSTC
TE-T01 BUREAUX